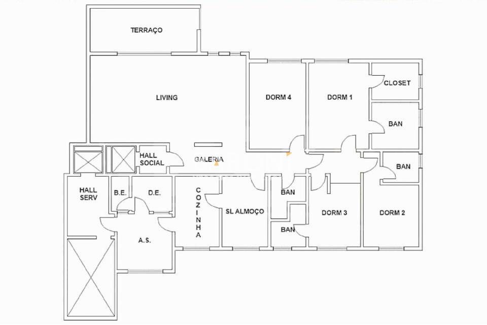
Apartamento à venda no bairro Moema com 4 dormitórios sendo 3 suítes, com área de 198 m²
Área:
198m²
198m²
Dorm.:
4(3)
4(3)
Vagas:
4
4
Apartamento a venda em Moema Índios, nobre, fora da rota. Excelente construtora, planta quadrada, andar alto. Lazer com quadra de tênis e piscina. Para comprar imóvel procure a Baroni Negócios Imobiliários, imobiliária em Moema.
Apartamento a venda em Moema Índios, nobre, fora da rota. Apartamento com 4 dormitórios sendo 3 suítes, 4 banheiros, 4 vagas e 198 metros de área útil. O edifício PALAZZO ISOLA DORO é excelente com uma planta quadrada, face norte, um apartamento por ala, andar alto. Lazer com quadra de tênis e piscina, playground, salão de festas e sauna. A localização é ótima na avenida Jurema, próximo a um vasto comércio e serviços diversificados. Gostou? Agende sua visita com um dos nossos corretores, a Baroni tornará esta a melhor jornada de compra da sua vida! Referência do imóvel: 400646. Baroni Imóveis, imobiliária sediada em Moema, especializada em compra e venda de apartamentos e casas, em bairros nobres de São Paulo.
V. de venda: R$ 2.400.000,00
Condomínio: R$ 3.051,00
IPTU: 10 X R$ 2.001,00
Características do imóvel
- Área de Serviço
- Armários Embutidos
- Closet
- Copa
- Escritório
- Lavabo
- Quarto de Empregada
- Sala de Almoço
- Sala de Jantar
- Terraço
Detalhes do Empreendimento
- Gerador
- Piscina
- Playground
- Quadra Poliesportiva
- Salão de Festas
- Sauna
Quero mais informações





















